Modern Spacious Individual Duplex House For Sale
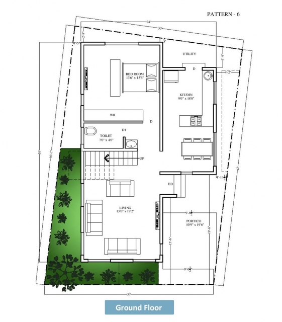
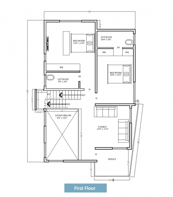
For Sale : 30x45 (1350 sqft) Newly DC Converted constructed duplex house with east facing brand new constructed with Vastu compliance & Architectural design having 3 bedrooms with attached bathrooms, one study-room, living rooms, kitchen, dinning room, car parking, borewell, club house, swimming pool with beatifull location in "BLESSING GARDEN" a fully developed gated community layout on Hennur main road, clitals & Shopping Malls....
The house is very closely located to very good and well reputed schools like
- Bangalore international school
- St. Michael's school
- Legacy school
- Vibgyor school
- New Indus Valley International School
It is close to shopping malls like food world, Lulu super market etc. Hospitals like Cratis Hospital are just a stone's throwaway from it.... It is near MR Nursing college..
The locality has very good restaurants like Shandong, Family restaurant etc...... which cater food of various varieties like Chinese, south indian, north indian, mughalai, Punjabi etc... It is well equipped with reputed medical stores like Trust medicals and similar others, Good Bakeries like Sweet Chariot and Honest bakery are closely located and its close to Bus stops and auto stands and International Airport road....













